11 visitas
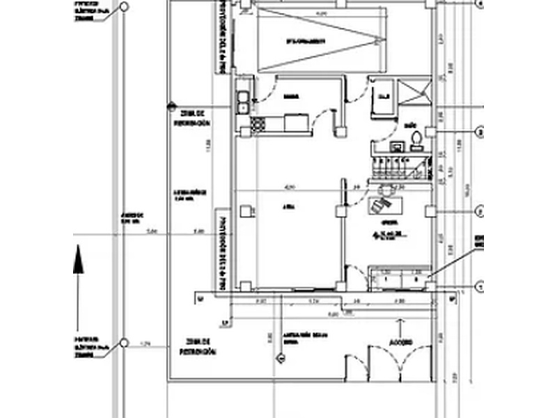
Elaboración de planos para la construcción de edificaciones.
Tu formulario será revisado enseguida.