12 visitas
Entregas a: Colombia
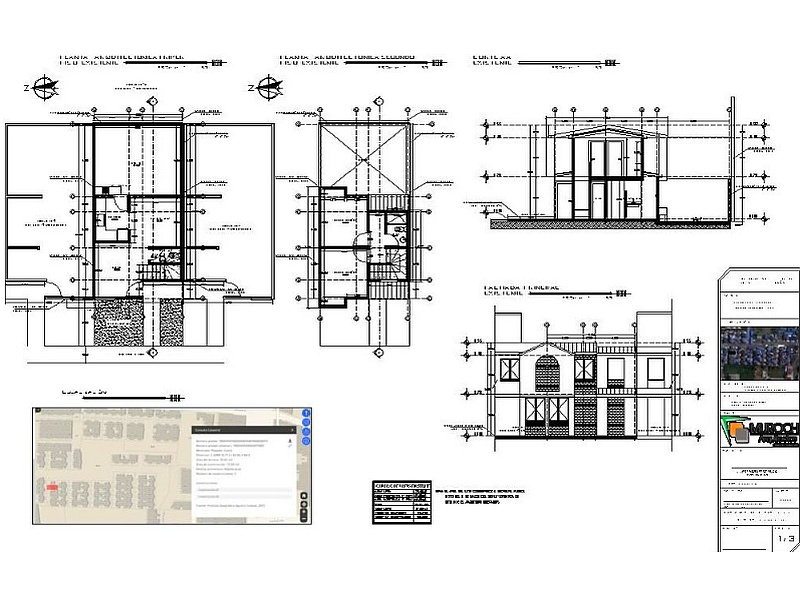
Diseñamos planos arquitectónicos personalizados que reflejan la distribución óptima de espacios, asegurando un equilibrio entre funcionalidad y estética. Este plano define cómo se organizarán las habitaciones, puertas y ventanas para garantizar la comodidad y eficiencia del proyecto.